四ツ谷の築浅レジデンス
【
一棟
アパート
】
都心にありながら広大な自然と共存している立地!
「四ツ谷」「市ケ谷」「曙橋」駅が徒歩圏内!
| 最寄駅 | 所在地 | 面積 | 築年月 | 価格 |
|---|---|---|---|---|
都営新宿線「曙橋」駅 徒歩 6分 | 新宿区四谷坂町 | 土地/132.95㎡ 建物/172.87㎡ | 2019年09月 | 成約済み |
| 満室時利回り | 満室時年収 |
|---|
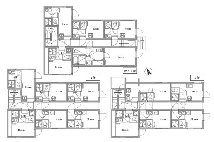
物件写真・間取り
物件概要
| 物件名 | 四ツ谷の築浅レジデンス |
|---|
| 交通機関 | 都営新宿線「曙橋」駅 徒歩 6分 中央総武線、中央線快速、丸ノ内線、南北線「四ツ谷」駅 徒歩 9分 中央総武線、都営新宿線、有楽町線、南北線「市ヶ谷」駅 徒歩 12分 |
|---|
| 所在地 | 新宿区四谷坂町 |
|---|
| 価格 | 27,800万円 |
|---|
| 土地権利 | 所有権 |
|---|
| 土地面積 | 132.95㎡ |
|---|
| 建物面積 | 172.87㎡ |
|---|
| 建物構造 | 木造 |
|---|
| 築年月 | 2019年09月 |
|---|
| 都市計画 | 市街化区域 |
|---|
| 用途地域 | 第一種中高層住居専用地域 |
|---|
| 建ぺい率 | 60% |
|---|
| 容積率 | 300% |
|---|
| 地目 | 宅地 |
|---|
| 現況 | 賃貸中 |
|---|
| 引渡し | 即時 |
|---|
| 備考 | 全16戸 |
|---|













