荻窪の1棟ビル
【
一棟
ビル
】
駅3分・ミラー仕様のモダンなオフィスビル
| 最寄駅 | 所在地 | 面積 | 築年月 | 価格 |
|---|---|---|---|---|
IR総武中央線・JR中央本線・丸ノ内線「荻窪」駅 徒歩 3分 | 杉並区荻窪5丁目 | 土地/589.46㎡ 建物/1,998.88㎡ | 1991年05月 | 成約済み |
| 満室時利回り | 満室時年収 |
|---|
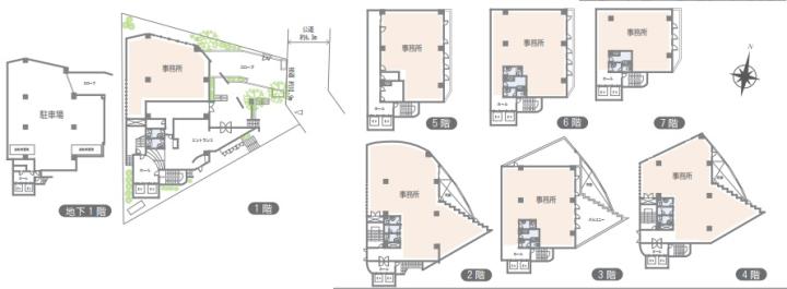
物件写真・間取り
物件概要
| 物件名 | 荻窪の1棟ビル |
|---|
| 交通機関 | IR総武中央線・JR中央本線・丸ノ内線「荻窪」駅 徒歩 3分 |
|---|
| 所在地 | 杉並区荻窪5丁目 |
|---|
| 価格 | 118,000万円 |
|---|
| 土地権利 | 所有権 |
|---|
| 土地面積 | 589.46㎡ |
|---|
| 建物面積 | 1,998.88㎡ |
|---|
| 建物構造 | SRC |
|---|
| 築年月 | 1991年05月 |
|---|
| 都市計画 | 市街化区域 |
|---|
| 用途地域 | 近隣商業地域 |
|---|
| 建ぺい率 | 80% |
|---|
| 容積率 | 300% |
|---|
| 地目 | 宅地 |
|---|
| 現況 | 賃貸中 |
|---|
| 引渡し | 即時 |
|---|













